首页 > 二手房 > 保利国际高尔夫花园独栋别墅 超大花园值得拥有

    保利国际高尔夫花园独栋别墅 超大花园值得拥有

    • 房源编号: CSDX2205101055502
    • 发布时间: 2024-05-08 09:09:35
    • 房屋总价: 630万
    • 房屋单价: 20671/m²
    • 房屋面积: 304.77m²
    • 房屋朝向:  
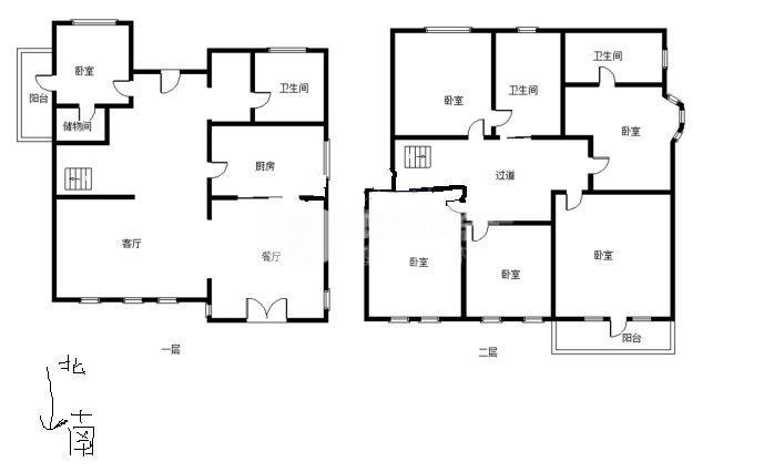
    • 房屋户型: 5室3厅3卫
    • 房屋楼层: 1/3层
    • 装修情况: 毛坯
    • 房屋区域: 红谷滩
    • 所属小区: 保利国际高尔夫花园瑞士风华
    • 房屋产权: 产权
    • 房屋用途: 别墅
    • 交易类型: 出售
    • 房屋年代: 0.0年
    • 建筑类别: 独栋别墅

    房源特点

    配套及特色

     

    委托二维码

    房源描述

     

    地图配套

    房源地址:庐山南大道
    小区简介:该小区环境优美,交通便利,适合居住

    推荐房源

    预约